John W. Perry, IV

COPPER MAGNOLIA DISTILLERY

— PROJECT NAME

Copper Magnolia Distillery


— PROJECT TYPE

Solo Thesis Project


— DATE

05.12.2025


Copper Magnolia Distillery is a full-scale urban distillery located at the corner of South Lamar Street and East Pearl Street in downtown Jackson, Mississippi. This site is positioned to anchor a new development and activate the surrounding entertainment district through the promotion of craft, culture, and public engagement. This site sits two blocks north of the existing Cathead Distillery, a local icon known for its popular events, community engagement and whiskey.


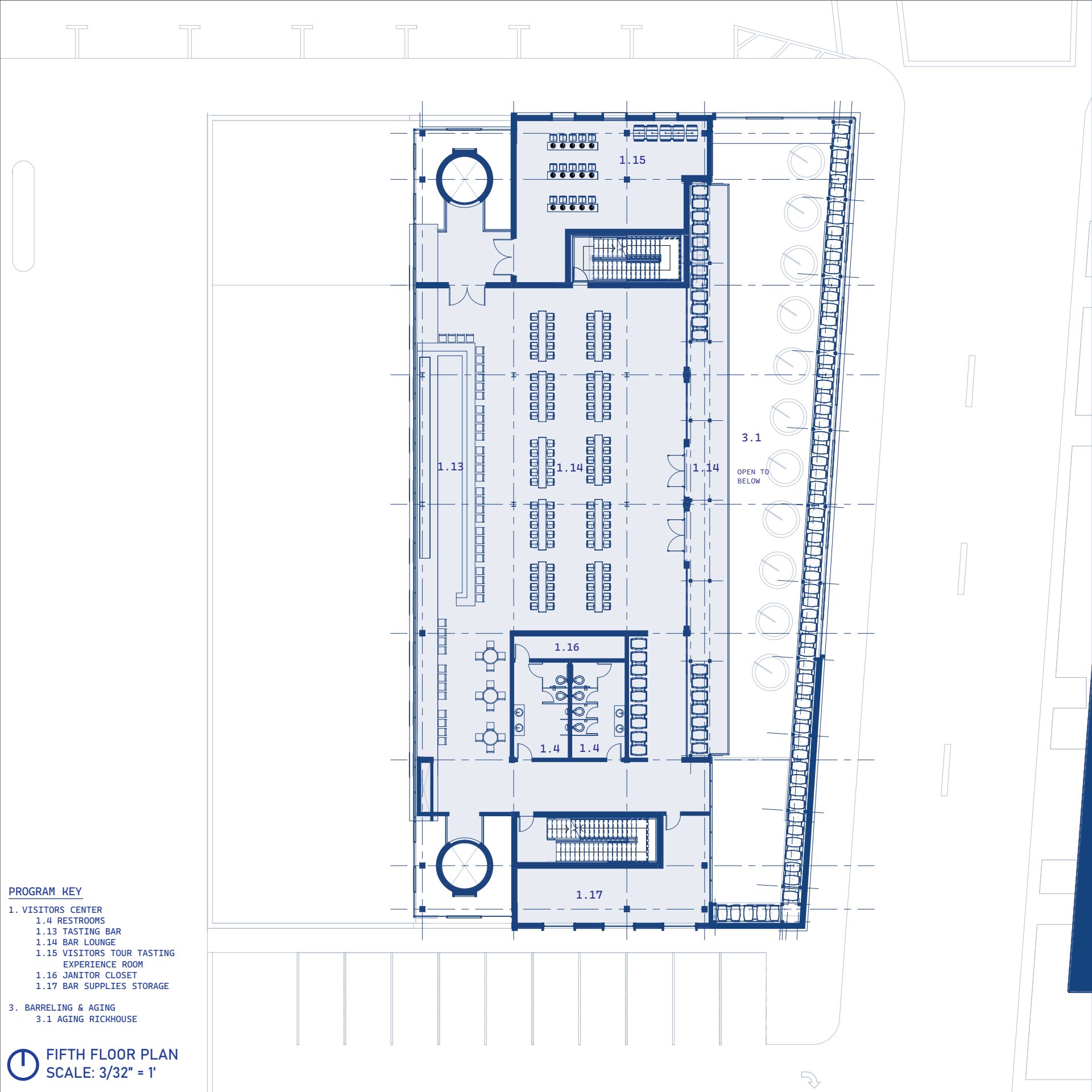
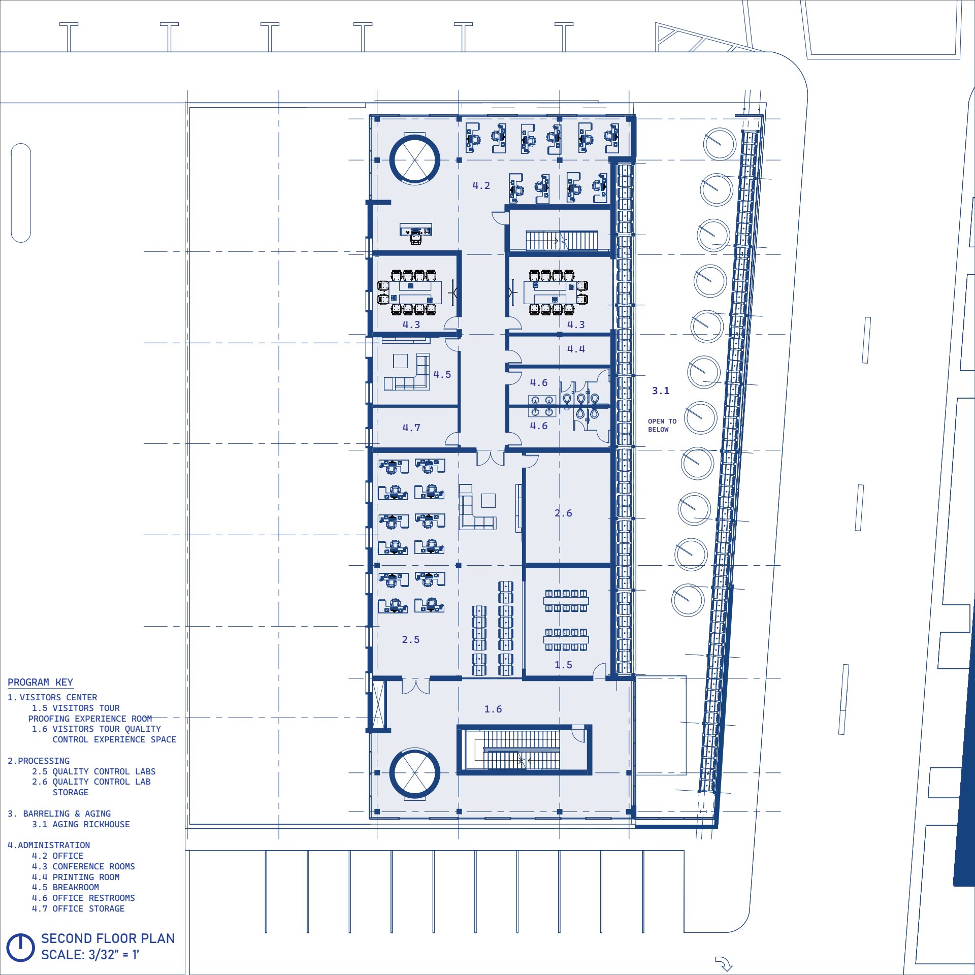
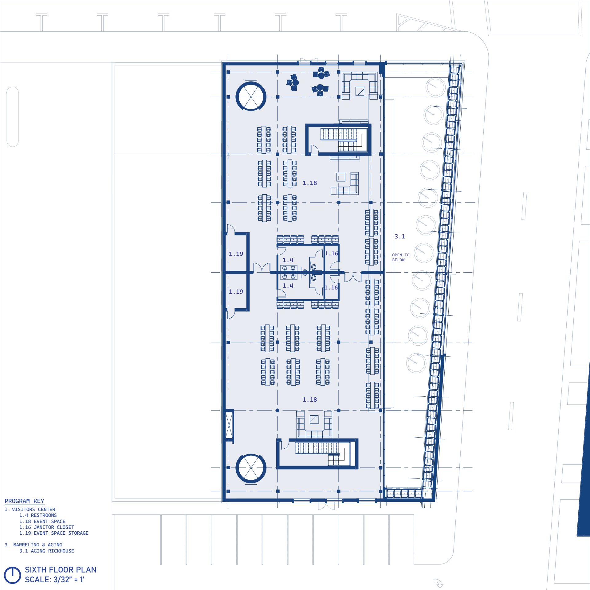
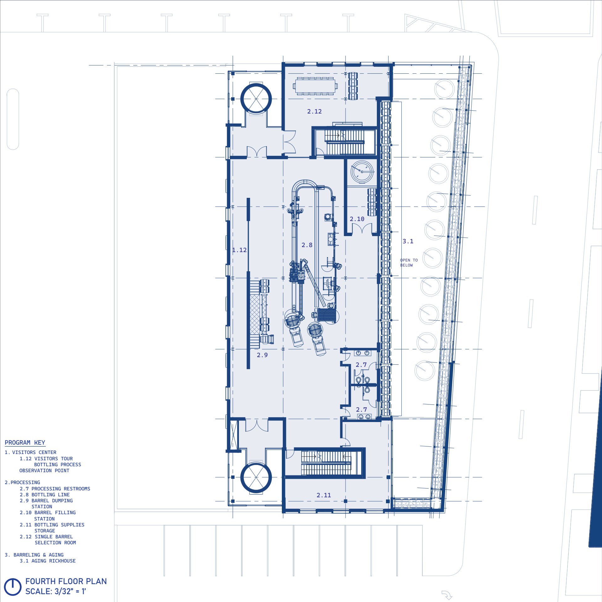
The program included full capabilities for whiskey program, from grain to glass, a retail shop, experience rooms, event space, tasting bar and experience terraces located throughout the barrel aging atrium. The design centers on the idea of transparency, both conceptually and physically. This idea is expressed through the highlighting of the barrel aging warehouse, mash house, still house and other production spaces to expose the public, and visitors to the processes of whiskey production. Additionally, a glass curtain wall band wraps the building exposing various moments such as the

custom still-shaped elevators, barrel aging atrium and fermentation tanks, turning the building into a dynamic showcase of the whiskey-making process. This move creates a visual and experiential connection between the public realm and the inner workings of the distillery. It transforms the process from something hidden to something celebrated, reinforcing the idea of transparency and deepening the distillery’s connection to place.


At the street level, the fermentation tanks and barrel aging atrium are exposed bringing life to the sidewalk while on the fifth floor a tasting bar provides views of the city and exposes more of the barrels. The top-floor event space offers magnificent views of the city, positioning the distillery as both a destination and civic contributor. The architecture combines modern style and industrial expression with refined detail to reflect both the heritage of Jackson, and the craftsmanship of the distilling process. Ultimately, this project is about more than just production, it is about storytelling. It tells the story of the creative energy and people of Jackson, its potential for reinvention, and the value of placing process, people, and place at the center of design.


Context Drawings

Click one to see it closer!

Elevations

Click one to see it closer!

Floor Plans

Click one to see it closer!

Sections

Click one to see it closer!

Egress Plans

Click one to see it closer!

Wall Section Detail

Click one to see it closer!


Structural Axonometric

Click one to see it closer!

Material Axonometric

Click one to see it closer!

Renderings

Click one to see it closer!